For Sale

How Can We Help You?

Make an Enquiry

Features

  • CLOSE TO DUNDEE WATERFRONT
  • APPROX. 500M FROM PROPOSED EDEN PROJECT
  • ADJACENT 102 BED HOTEL INDIGO
  • WITHIN DUNDEE CITY CENTRE
  • CLOSE TO MAIN RETAILING CENTRE
  • EXCELLENT DEVELOPMENT OPPORTUNITY

Description

The subjects comprise a two storey and attic former mill building of stone wall construction under a pitched and slated roof with dormer windows to the front.

We understand the premises were originally built in 1830, but later converted to offices in circa 1913. As such, it includes a number of ornate features both internally and externally including three arched entrances from King Street and stone parapets. The building is currently Category B Listed, as being of special architectural and historical merit.

Internally, the premises provide former office accommodation at ground floor level, and secure residential / hostel accommodation and first and attic floor level.

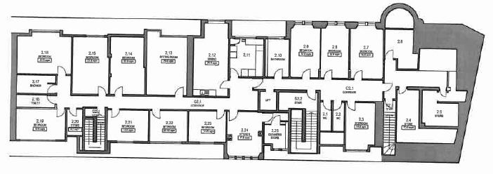
Planning permission has been granted for the conversion of existing building into flatted development (18 units) and associated works. Further information is available on request.

View more information

Terms

The heritable interest in the subject premises is available to purchase. Offers are invited.

Viewing

Westport Property will be pleased to arrange and accompany all viewing requests.

VAT

All prices, premiums and rents are quoted exclusive of VAT which may be payable.

Accommodation

We have measured the premises in accordance with the RICS Code of Measuring Practice to be as follows:-

2,006 sq m (21,600 sq ft)

Location

The premises are situated to the south side of King Street, a short distance east from its junction with East Marketgait, approximately half a mile north-east of Dundee city centre.

The surrounding area is undergoing a £1 billion upgrade to transform the city into a world leading waterfront destination for visitors and businesses.

The Victoria & Albert Museum, Caird Hall, Dundee Science Museum, City Quay Water Sports Centre, Olympia Leisure Centre, Slessor Gardens and the
proposed Eden Project are all within 10 minutes walk. The new railway station, bus station, Overgate and Wellgate Shopping Centres, Gallagher Retail Park and two Universities – both Dundee and Abertay – are also in close proximity.